| Parameter | Spec. | Remark |
|---|---|---|
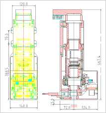
| Camera | 8k 7㎛ Line CCD | CCD size 57.344 ㎜ |
| Mag. | 1.4~2.8 x | |
| F/# | F/2.0 ~ 3.7 | Image NA 0.043~0.056 |
| EFL | 67.8~101.7 ㎜ | |
| MTF | 0.35~0.4 | @ 72lp/㎜ |
| DOF | ± 0.05~0.02 ㎜ | Optical DOF @Object |
| Distortion | ± 1 % | |
| Wavelength | 480 ~ 656 ㎚ | Visible ray |
| FWD | 25 ㎜ | Object~Bottom |
| BWD | Camera Fixed | |
| TTL | 466.97 ㎜ | Zoomed |
| Size | 140x467x196 ㎜ | With Camera |
| Iris | Variable | Use motor |
| CCD adapter | Inclusion | |
| Illumination | Inclusion | On axis |
| Motor | Exclusion | VEXTA PMM33A-MG20(Zoom) PMM33A-MG10(Iris) |
| Sensor | Exclusion | OMRON EE-SPX742(2ea), EE-SPX743(2ea) |




- Grid Chart

- USAF Chart
